Linan II

Envie de vivre au cœur d’une ville verte?
La résidence Le Linan II, l’un de nos projet les plus ambitieux, vous propose un ensemble de 10 appartements de 85 à 110m² sur Aywaille.

La proximité de toutes les commodités offre à ce projet un attrait particulier: grandes surfaces, stations service, écoles, commerces de proximité, gare, bus, marché hebdomadaire et, le tout, à quelques minutes de marche seulement.

Chaque appartement dispose d’un emplacement de parking intérieur et d’une terrasse privative. Vous apprécierez le confort d’un immeuble moderne, lumineux et soucieux de l’environnement. En effet, une attention particulière a été portée à la consommation énergétique: la résidence est conforme aux normes énergétiques K23, ce qui équivaut à une résidence très basse consommation. Un plus pour l’écologie, un plus pour votre économie.

Les plans du LINAN II ont été réalisés par le bureau d’architecte Esquisse dont vous pouvez voir d’autres réalisations ici.

1er étage, 4 appartements de 85m² à 102m²

plans 1etage

Appartement N°1

Caractéristiques

Prix:

Superficie: 85m²

Chambres: 2 (14m² & 9,6m²)

SDB: 1 ( 4,9m²)

cuisine/séjour: 38,3m²

terrasse: 8,1m²


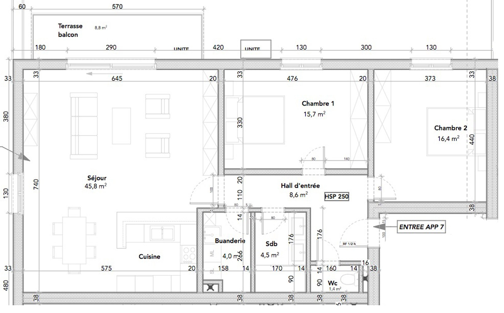
Appartement n°2

appartement 2

Caractéristiques

Prix:

Superficie: 85m²

Chambres: 2 (14m² & 9,6m²)

SDB: 1 ( 4,9m²)

cuisine/séjour: 38,2m²

terrasse: 8,1m²


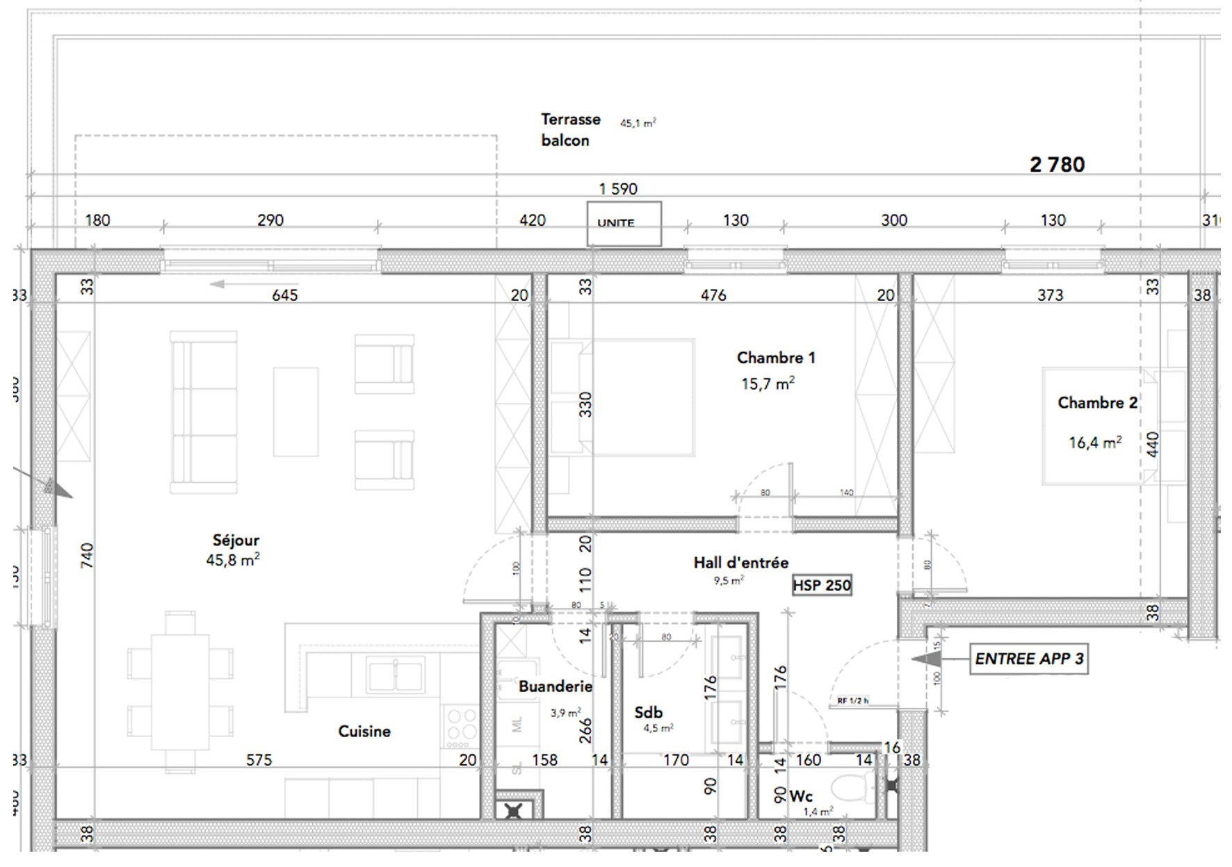
Appartement n°3

Appartement 3

Caractéristiques

Prix:

Superficie: 102m²

Chambres: 2 (15,7m² & 16,4m²)

SDB: 1 ( 4,5m²)

cuisine/séjour: 45,8m²

terrasse: 45,1m²


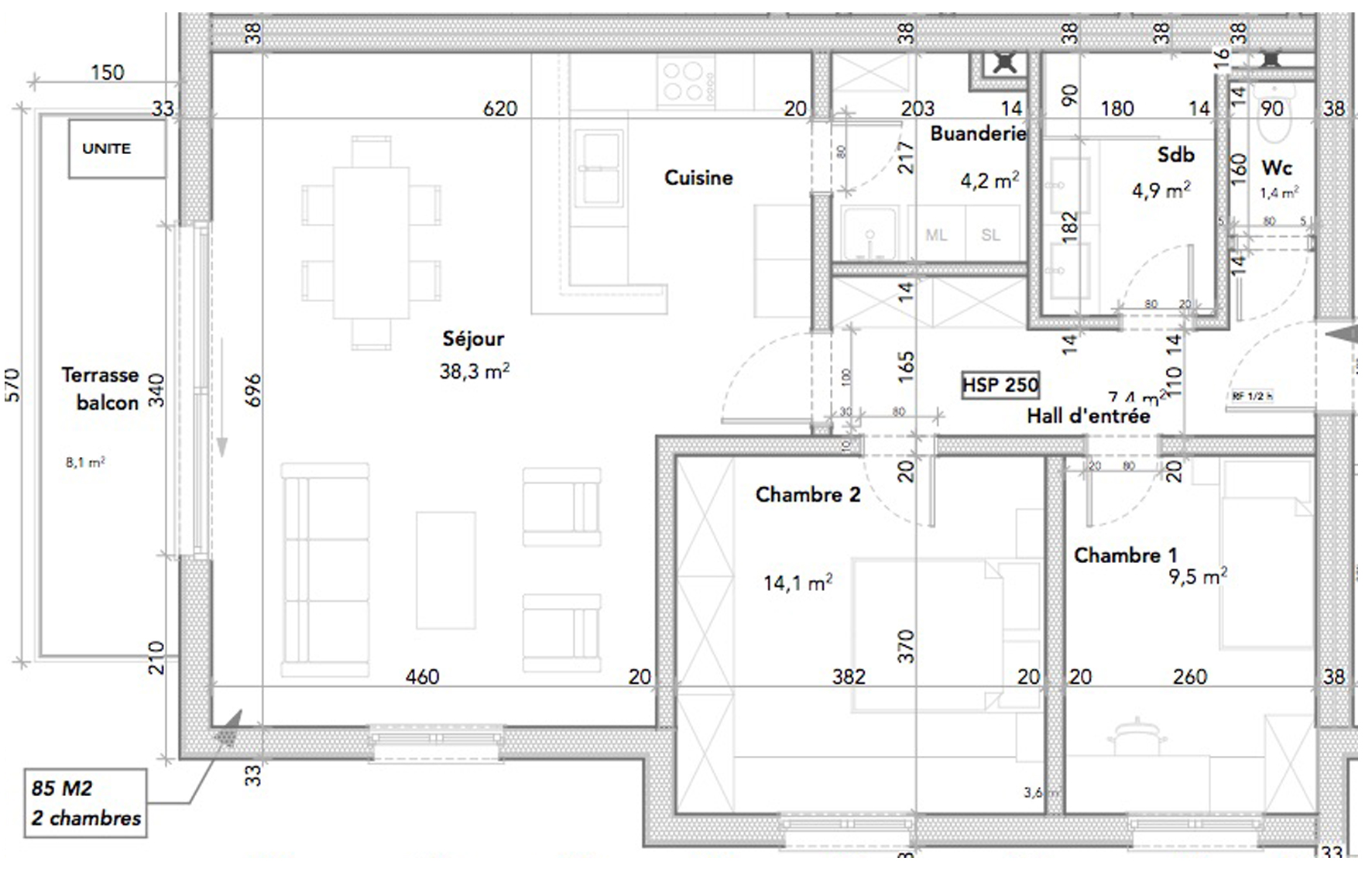
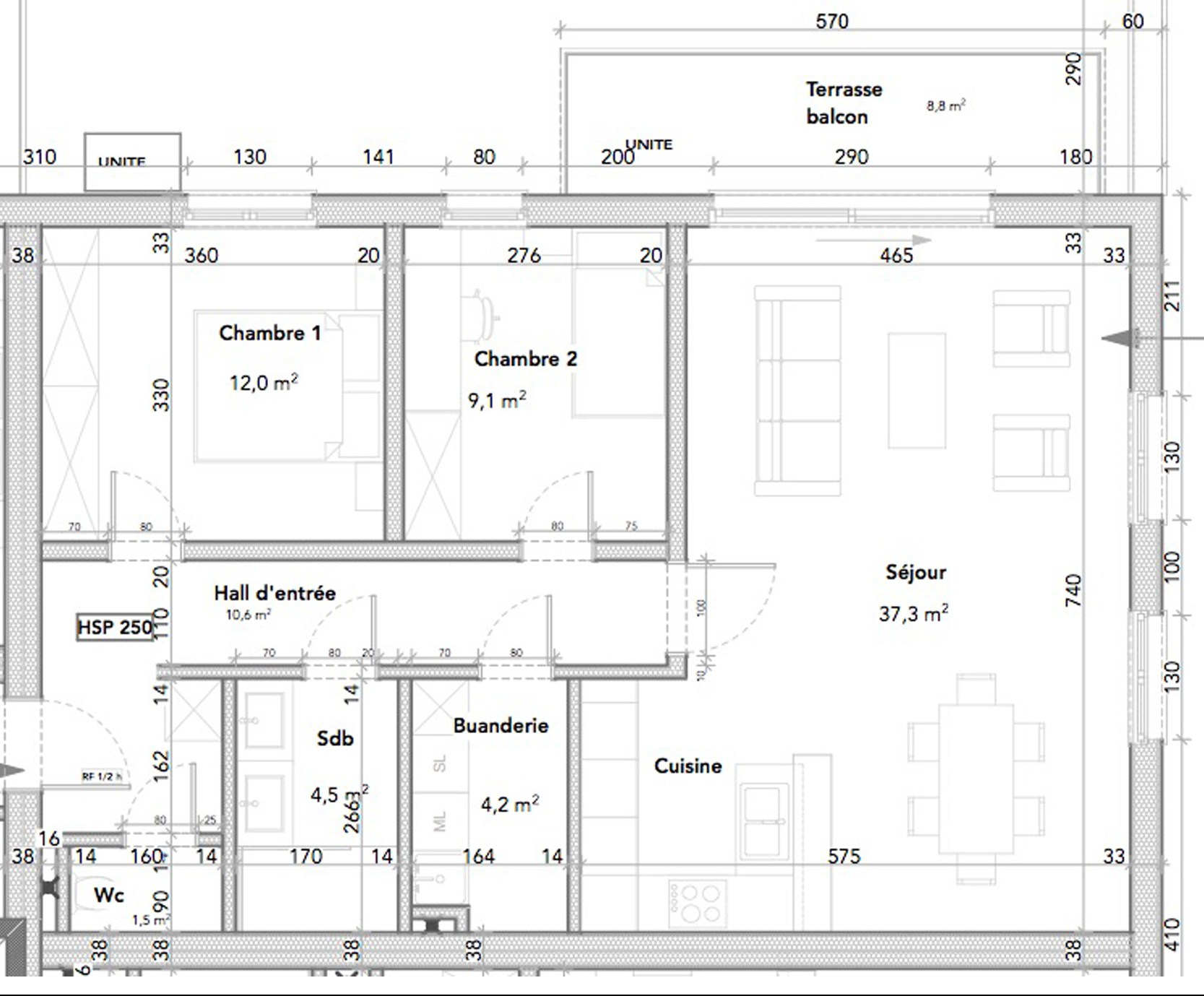
Appartement n°4

Appartement 4

Caractéristiques

Prix:

Superficie: 85m²

Chambres: 2 (12m² & 9,1m²)

SDB: 1 ( 4,5m²)

cuisine/séjour: 37,3m²

terrasse: 33,2m²



2éme étage, 4 appartements de 85m² à 102m²

plans 2etage copie

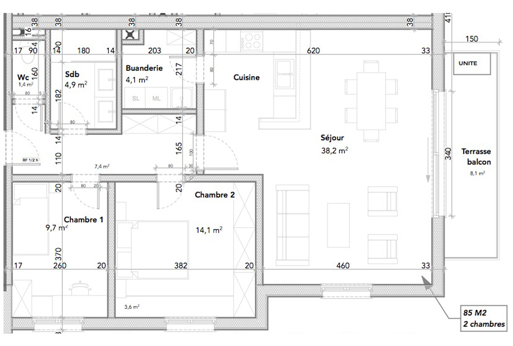
Appartement n°5

Appartement 5

Caractéristiques

Prix:

Superficie: 85m²

Chambres: 2 (14,1m² & 9,5m²)

SDB: 1 ( 4,5m²)

cuisine/séjour: 38,3m²

terrasse: 8,1m²


Appartement n°6

Appartement 6

Caractéristiques

Prix:

Superficie: 85m²

Chambres: 2 (9,7m² & 14,1m²)

SDB: 1 ( 4,9m²)

cuisine/séjour: 38,2m²

terrasse: 8,1m²


Appartement n°7

Appartement 7

Caractéristiques

Prix:

Superficie: 102m²

Chambres: 2 (15,7m² & 16,4m²)

SDB: 1 ( 4,5m²)

cuisine/séjour: 45,8m²

terrasse: 8,8m²


Appartement n°8

appartement-8.jpg

Caractéristiques

Prix:

Superficie: 85m²

Chambres: 2 (12m² & 9,1m²)

SDB: 1 ( 4,5m²)

cuisine/séjour: 37,3m²

terrasse: 8,8m²



3éme étage, 4 appartements de 110m² à 127m²

plans 3etage

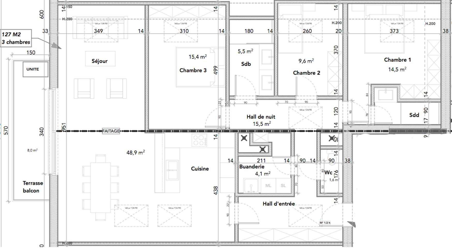
Appartement n°9

Appartement 9

Caractéristiques

Prix:

Superficie: 85m²

Chambres: 3 (15,4m², 14,5 & 9,6m²)

SDB: 1 ( 5,5m²)

cuisine/séjour: 48,9m²

terrasse: 8m²


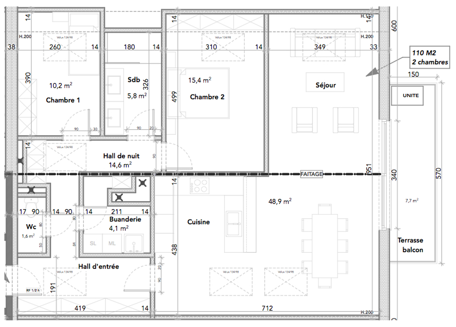
Appartement n°10

Appartement 10

Caractéristiques

Prix:

Superficie: 110m²

Chambres: 2 (10,2m² & 15,4m²)

SDB: 1 ( 5,8m²)

cuisine/séjour: 48,9m²

terrasse: 7,7m²


Rez-de-chaussée, garages

plans RDC

Caractéristiques

places de parking: 17 (+1PMR)

communs: compteurs, local poubelles